34 Paddock Street Whittlesea VIC
- 5
- 2
- 5
"Boasting Space & Exceptional Views"
An exciting opportunity to lease in central Whittlesea close to shops, schools, parklands and all that the township has to offer, making this a convenient location.
Sweeping verandas wrap around the top of the home overlooking picturesque views of the countryside.
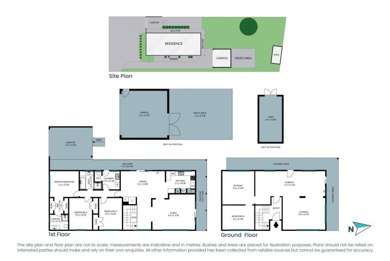
With upstairs and downstairs this generous size family home ticks all the boxes.
Upstairs offers three great sized bedrooms with WIR and Ensuite off master and built in robes in remaining bedrooms, floorboards and dual blind system.
Refrigerated cooling and ducted heating services upstairs.
Light filled formal loungeroom with modern kitchen and adjoining family living/dining area.
Central main bathroom with shower & bath facilities and two toilets.
Downstairs offers an open plan and spacious rumpus area/retreat with a further two rooms that could work as an additional bedroom and study space.
Split system heating & cooling services downstairs.
Double sliding doors lead to large rear yard with clear and well-maintained grass area.
All set on a 1306m2 block approx.
Extras include:
- External security shutters plus quality fittings and appliances.
- Huge open bay shedding for all your machinery and vehicles.
- Floorboards throughout upstairs and tiled wet areas, lush new carpets
downstairs.
- Security doors, and security system available for use.
- Double garage down the end of the drive with rear drive through access.
- Lock up carport at front with remote control roller door
- Ample parking for caravan and trailer
AVAIL NOW upon 2 weeks notice to occupants
CALL NOW TO INSPECT by Private Appointment
Sweeping verandas wrap around the top of the home overlooking picturesque views of the countryside.
With upstairs and downstairs this generous size family home ticks all the boxes.
Upstairs offers three great sized bedrooms with WIR and Ensuite off master and built in robes in remaining bedrooms, floorboards and dual blind system.
Refrigerated cooling and ducted heating services upstairs.
Light filled formal loungeroom with modern kitchen and adjoining family living/dining area.
Central main bathroom with shower & bath facilities and two toilets.
Downstairs offers an open plan and spacious rumpus area/retreat with a further two rooms that could work as an additional bedroom and study space.
Split system heating & cooling services downstairs.
Double sliding doors lead to large rear yard with clear and well-maintained grass area.
All set on a 1306m2 block approx.
Extras include:
- External security shutters plus quality fittings and appliances.
- Huge open bay shedding for all your machinery and vehicles.
- Floorboards throughout upstairs and tiled wet areas, lush new carpets
downstairs.
- Security doors, and security system available for use.
- Double garage down the end of the drive with rear drive through access.
- Lock up carport at front with remote control roller door
- Ample parking for caravan and trailer
AVAIL NOW upon 2 weeks notice to occupants
CALL NOW TO INSPECT by Private Appointment
Features
- Study
- Living Area
- Balcony
- Built-ins
- Ducted Heating
- Evaporative Cooling
- Polished Timber Floors
- Remote Garage
- Air Conditioning
- Heating
- 3 Phase Power
- Area Views
- Close to Schools
- Close to Shops
- Close to Transport
- Security System